












Malgré (ou grâce à) un budget très limité, l’étroitesse du site et sa situation enclavée, ce bâtiment résidentiel de 12 appartements et une maison individuelle parvient à offrir des unités de grande qualité dans un cadre sobre et harmonieux.
En collaboration avec Andreas Leitgeb (L.BV Architektur)
Maître d’ouvrage : Feldmann Immobilien AG, Muri AG, Doreli + Partner AG
Programme : Ensemble de logements en promotion privée. 12 appartements et une maison individuelle
Surface : 1.516 m2 SDP. Espaces exterieurs : 2060.86 m2 SDP
Budget : 4,2 M CHF
Mission : Conception, projet, obtention du permis de construire, dossier d’appel d’offres.
Équipe : A. Leitgeb, I. Beccar Varela, M. Serena
BET : QSI Aarau (Structures), R. Arzethauser & Partner (Instalations), Grolimund + Partner (thermique)
L’immeuble est situé à la périphérie est d’un quartier dominé par des maisons individuelles de deux étages. La parcelle, accessible à travers une servitude, marque à la fois la limite de la commune et la frontière entre le tissu suburbain et des champs agricoles non constructibles.
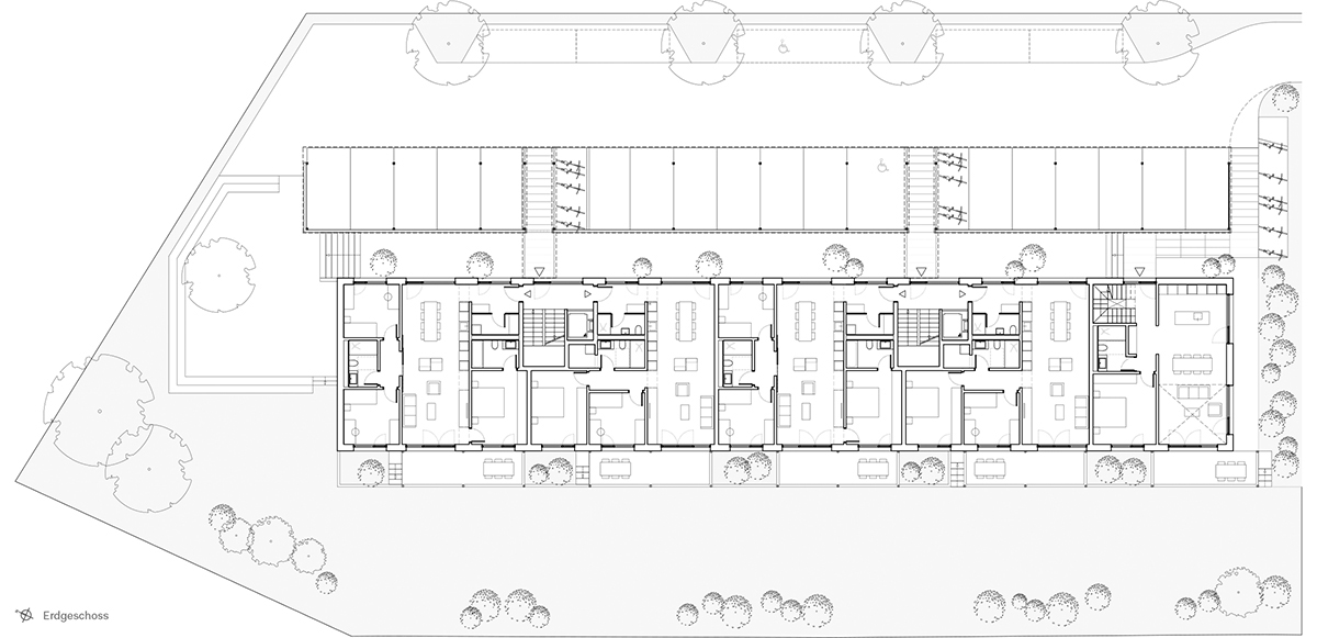
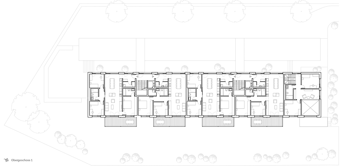
Le programme fonctionnel prévoit 13 unités d’habitation dans un mix d’appartements de 2,5 , 3,5 et 4,5 pièces , plus une maison de ville en duplex avec accès individuel.
Le coût d’objectif étant restreint, une construction compacte et sans parking souterrain a été privilégiée. Aussi, un immeuble linéal de trois niveaux se développe tout le long de la parcelle. Un abri pour les voitures le longe et en donne le contrepoint, organisant le stationnement, les accès aux cages d’escaliers et créant des courettes privatives aux appartements du RDC.
Deux noyaux de circulations verticales desservent deux appartements par niveaux et les caves du sous-sol.
La principale qualité des appartements est leur grand séjour-salle à manger traversant. Ce dispositif permet à chacun de ces espaces de bénéficier au même temps de l’orientation sud-ouest (offrant des généreux balcons) , et des vues dégagées vers les champs agricoles à l’est. Les unités en attique disposent d’un espace terrasse supplémentaire.
La maison individuelle est placée au sud, bénéficiant ainsi d’un accès dédié, d’excellentes vues et des parfaites conditions d’ensoleillement.
Les simples et peu nombreux éléments qui constituent la composition de l’ensemble sont : un enduit de qualité en deux textures, deux types d’ouvertures avec les mêmes proportions, un même système structurel pour balcons, pergolas et abris de voitures.
La mise en œuvre cherche une certaine élégance austère par le moyen de l’évidence. Le choix de chaque détail constructif se fait par la justesse de son expression et l’économie de ses moyens. Les effets formels superflus sont évités, en favorisant la mise en place d’une construction simple, mais non dépourvue de grâce.
