






















Restructuration lourde et extension de l’Espace Solidarité, siège national de l’association caritative à but non lucratif Secours Populaire Français.
Maître d’ouvrage : Secours Populaire Français
Programme : Rénovation et extension d’un immeuble de bureaux et ces annexes.
Surface : 2 700 m2
Budget : N/C
Mission : Complète
BET tous corps d’état : Bérim
BET économie circulaire : R-USE
Consultant construction bois et environnement : Stéphane Cochet
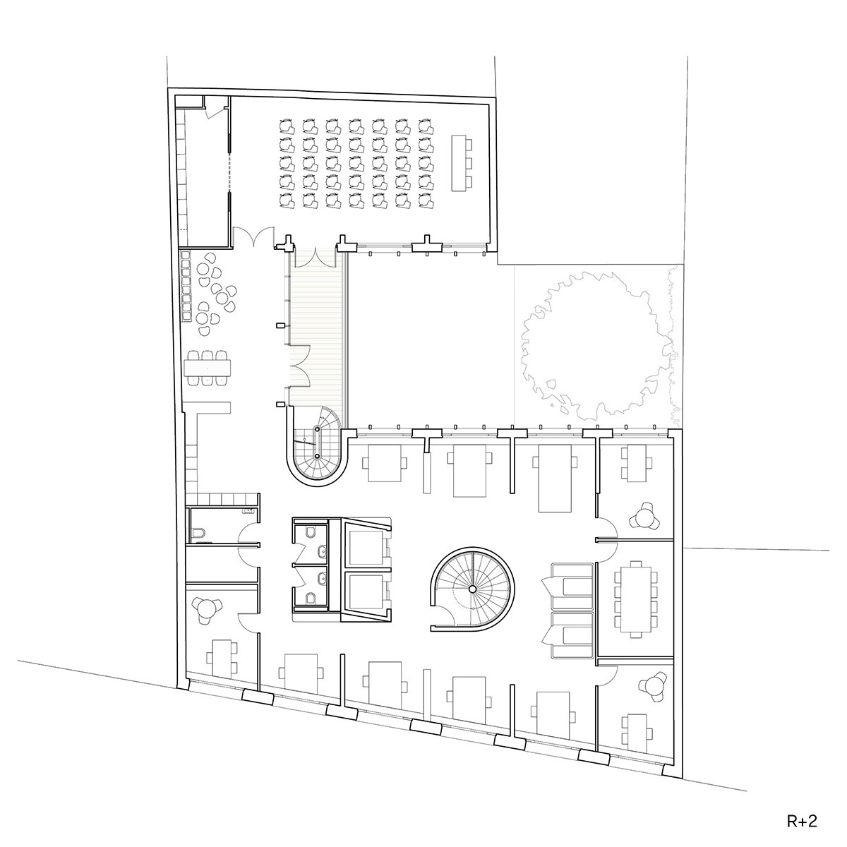
Le projet porte sur la restructuration lourde et l’extension de l’Espace Solidarité du Secours populaire français, bâtiment historique situé rue Froissart, dans le Marais. L’intervention vise à réhabiliter l’existant tout en préservant ses structures principales, à ouvrir l’équipement sur son quartier et à répondre aux nouveaux besoins d’accueil, de formation et de travail associatif.
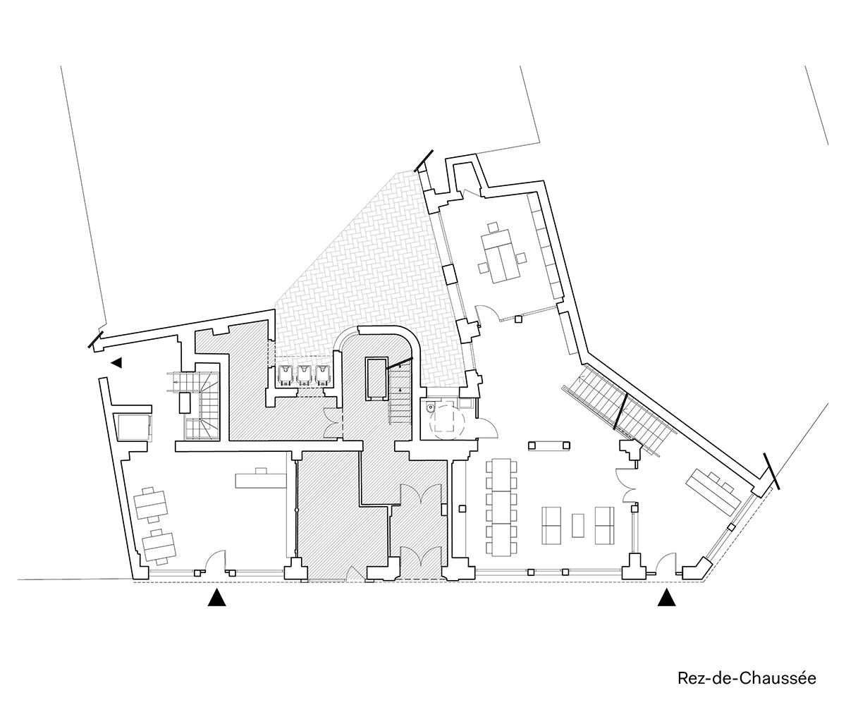
Les niveaux inférieurs sont entièrement requalifiés afin de renforcer l’ouverture au public : un grand hall traversant et une cafétéria ouverte sur une terrasse au rez-de-chaussée, ainsi qu’une salle polyvalente en sous-sol, modulable et largement connectée à un nouveau jardin en pleine terre. Cette introduction paysagère marque une transformation majeure d’une parcelle auparavant totalement minéralisée.
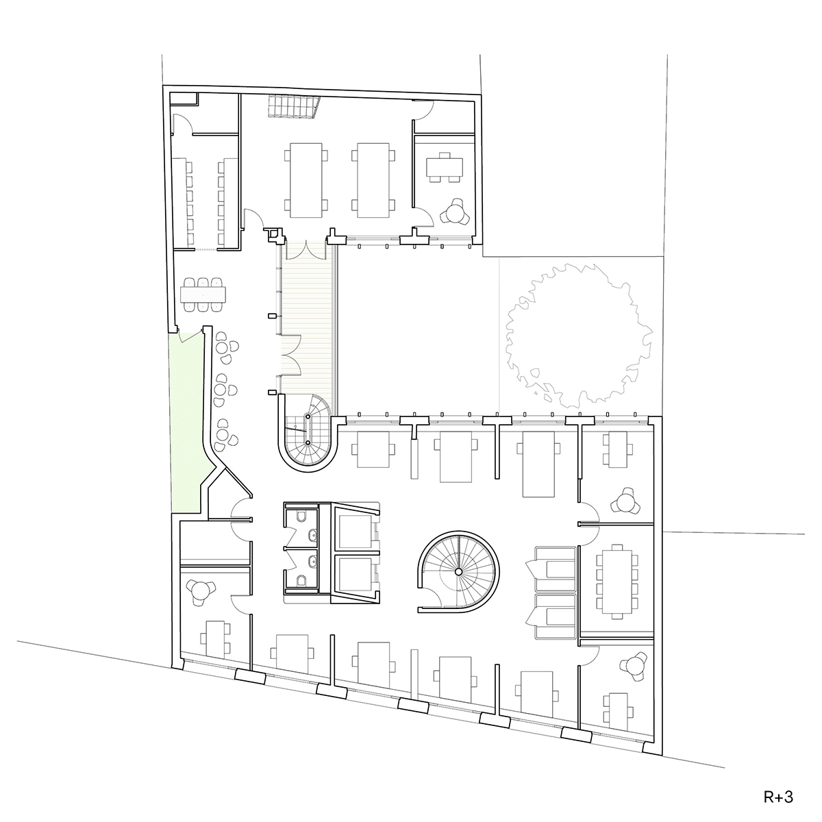
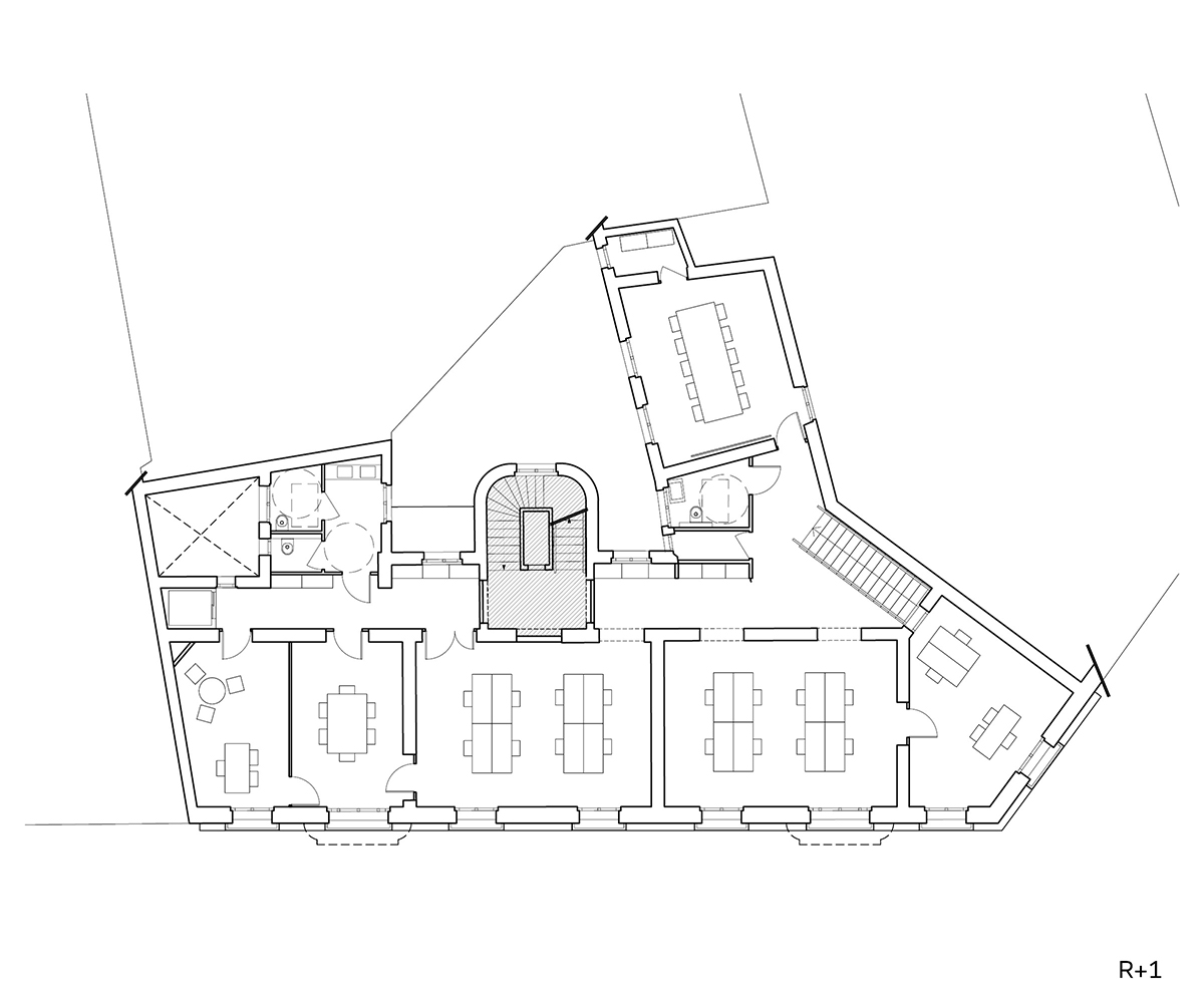
Aux étages, la réhabilitation des plateaux permet la mise en place d’espaces de travail flexibles, évolutifs et mutualisés, adaptés aux usages contemporains des bénévoles, équipes permanentes et associations partenaires. Une nouvelle extension en fond de parcelle remplace l’ancienne construction existante et s’articule avec le bâtiment principal, tout en respectant les mitoyennetés et les conditions d’ensoleillement du voisinage.
Le projet revendique une écriture architecturale sobre, lumineuse et cohérente, en rupture avec l’état existant, tout en conservant des éléments patrimoniaux significatifs en façade sur rue. Les matériaux biosourcés, les façades bois, la place donnée à la végétation et à la lumière naturelle participent à une ambiance chaleureuse et apaisée.
Inscrite dans une démarche environnementale ambitieuse, la réhabilitation dépasse les exigences réglementaires : certification PassivHaus, recours à des systèmes constructifs bas-carbone, notamment en structure bois (feuillu français), façades en ossatures bois de fabrication hors-site, et stratégie poussée de réemploi et d’économie circulaire. Le projet affirme ainsi une vision responsable, solidaire et durable, en cohérence avec les valeurs portées par le Secours populaire français.
