











Le projet concerne la réhabilitation de 264 logements, d’un parking et l’amélioration des espaces communs et des espaces extérieurs de l’ensemble immobilier dit Groupe Molitor.
Maître d’ouvrage : Paris Habitat
Programme : Réhabilitation, en milieu occupé, de la résidence Molitor (15 cages d’escalier + un parking), amélioration des espaces extérieurs et de la qualité des espaces et services communs.
Surface : 13 265m² SDP + 1730 m² d’espaces extérieurs
Budget : 8M € HT
Certification et labels : HQE
BET : B27-Codibat
Paysagiste : Vincent Lion paysage
La résidence Molitor, située dans le 16ᵉ arrondissement de Paris, constituait un ensemble HBM emblématique des années 1930. Inscrite dans plusieurs périmètres de protection du patrimoine, à proximité de monuments historiques majeurs tels que la piscine Molitor, le Jardin des Serres d’Auteuil ou encore des œuvres de Le Corbusier, elle bénéficie d’une valeur urbaine et patrimoniale singulière.
Organisé autour d’un vaste cœur d’îlot minéral, l’ensemble regroupe quinze cages d’escaliers, deux cent soixante-quatre logements, plusieurs loges et des commerces en rez-de-chaussée. Sa structure en maçonnerie de briques, enduits ciment, charpente bois et couverture en ardoise et zinc témoigne d’une architecture sobre et rigoureuse, typique de son époque.
Malgré un état général satisfaisant, le bâtiment présentait des limites liées à son âge : absence d’isolation, menuiseries hétérogènes, ventilation peu efficace et confort thermique insuffisant. La cour intérieure, entièrement minérale, manquait de végétation et participait à la formation d’un îlot de chaleur, tandis que les escaliers de service et certains éléments de structure montraient des signes de dégradation. Les sous-sols, constitués de caves et d’un parking recouvert par la cour, révélaient des désordres liés à d’anciennes infiltrations. Les logements, bien conçus et généreux, offraient une trame fonctionnelle intéressante mais nécessitent aujourd’hui une mise à niveau technique et énergétique. Quant aux parties communes, elles conservent une qualité architecturale remarquable mais demandent une adaptation aux normes actuelles d’accessibilité, de sécurité et de confort d’usage.
Le projet de réhabilitation vise à améliorer durablement le confort et la qualité d’usage des logements tout en préservant leur caractère architectural. L’une des priorités concerne l’optimisation de la ventilation, jusqu’ici assurée par un système naturel inefficace et générateur d’inconfort. L’étude explore des solutions adaptées au bâti existant, telles que l’intégration de dispositifs de renouvellement d’air dans les menuiseries ou l’installation d’unités de ventilation double flux décentralisées. Ces systèmes, peu intrusifs et économes en énergie, assurent une aération efficace sans travaux lourds, tout en améliorant les conditions thermiques et sanitaires des logements.
La modernisation des pièces d’eau constitue également un enjeu essentiel. Selon les résultats du diagnostic, certaines salles de bain et cuisines sont rénovées partiellement ou entièrement pour offrir des espaces plus fonctionnels et conformes aux usages contemporains. Une attention particulière est portée aux logements d’angle, dont la géométrie singulière demande des aménagements spécifiques optimisant l’espace tout en respectant le budget du maître d’ouvrage.
Les travaux comprennent aussi la mise en conformité des installations électriques et de gaz, garantissant sécurité et performance. Le système de contrôle d’accès est repensé afin d’intégrer une technologie de visiophonie et des dispositifs sans fil adaptés au contexte de réhabilitation.
Les halls d’entrée, véritables espaces de transition entre la rue et le logement, font l’objet d’une rénovation respectueuse du patrimoine existant. Les matériaux et finitions sont choisis pour leur durabilité et leur cohérence architecturale, tandis que les boîtes aux lettres sont repositionnées dans les sas d’entrée, accessibles à tous et conformes aux normes postales.
L’accessibilité universelle guide l’ensemble des interventions : le nivellement des allées extérieures est ajusté pour garantir des accès sans ressaut, et les besoins spécifiques des habitants en situation de handicap sont pris en compte dès le diagnostic. Des réaménagements adaptés sont envisagés, notamment dans les logements situés en rez-de-chaussée.
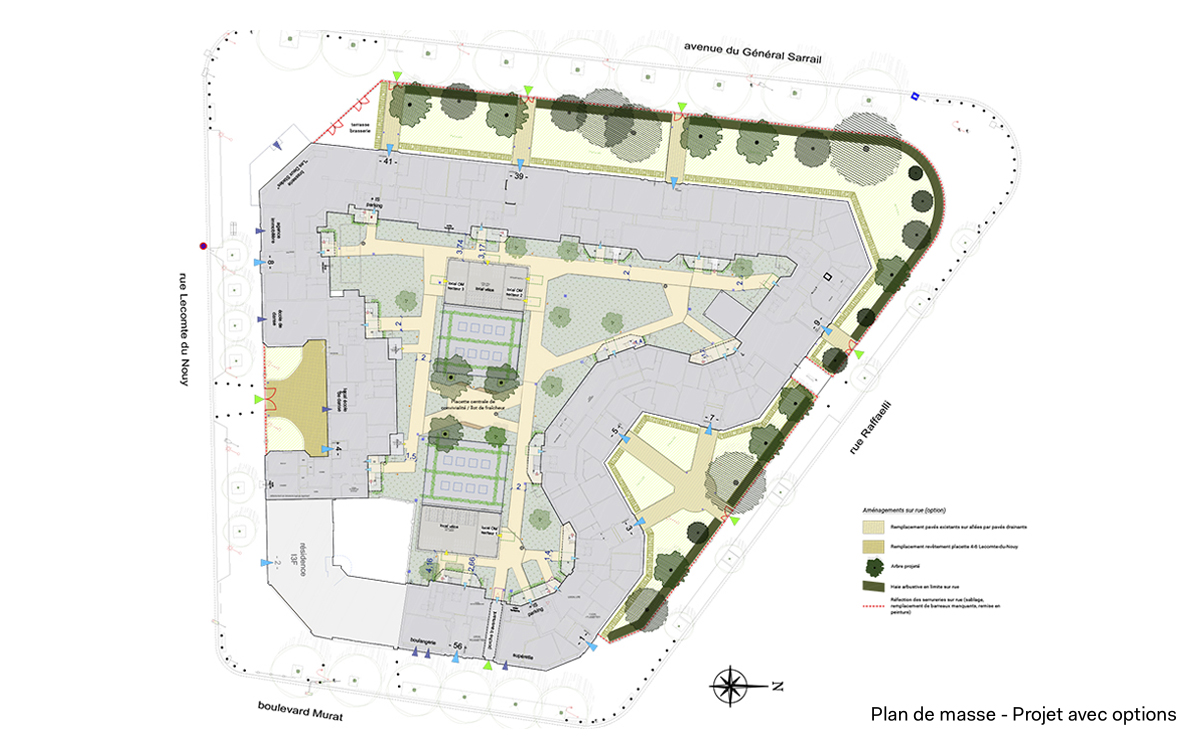
Projet paysager
Le projet paysager adopte une approche biophilique et durable, centrée sur le confort des habitants et la qualité d’usage. Il transforme les espaces extérieurs en un cadre de vie vert et harmonieux, favorisant la biodiversité, le bien-être et la résilience climatique.
Le réaménagement se concentre sur la cour intérieure, jusque-là entièrement minérale, pour en faire un véritable lieu de respiration et de convivialité. Autour d’un axe traversant reliant la cour au boulevard Murat, la composition articule des circulations fluides et hiérarchisées, accompagnées de larges massifs plantés qui redessinent les parcours et structurent les espaces communs. Les contraintes techniques de la dalle du sous-sol conduisent à privilégier une végétation semi-intensive composée de sedums, de vivaces et de petits arbrisseaux, générant une diversité d’ambiances selon l’exposition.
Les nouvelles plantations réduisent les îlots de chaleur urbaine et améliorent la qualité climatique, tandis qu’un îlot de fraîcheur central, agrémenté de jardinières arborées, devient un espace de détente et d’échanges entre résidents. Les émergences du parking sont habillées de structures métalliques supportant des plantes grimpantes, favorisant la continuité végétale et l’intégration paysagère. Les revêtements minéraux, plus clairs et perméables, limitent la rétention de chaleur tout en améliorant le confort d’usage et l’accessibilité.
Sur rue, les interventions demeurent sobres et respectueuses du caractère existant : les dallages sont repris pour corriger les affaissements et assurer l’accessibilité universelle des halls. De nouvelles haies mixtes et des plantations complémentaires enrichissent la trame végétale, renforçant la biodiversité et préservant l’intimité des logements du rez-de-chaussée.
Ainsi, la réhabilitation de la résidence Molitor s’inscrit dans une volonté d’équilibre entre mémoire et modernité, continuité architecturale et innovation environnementale, offrant à ses habitants un cadre de vie durable, confortable et harmonieux, fidèle à l’esprit d’origine tout en répondant aux enjeux contemporains.
